FERIX和白【和白通り沿いの新築倉庫事務所】
和白通り沿道沿いの倉庫付き事務所
| 物件名 | FERIX和白【和白通り沿いの新築倉庫事務所】 | 取引態様 | 貸主 |
|---|---|---|---|
| 賃料 | 242,000円 | 管理人 | 巡回 |
| 敷金/礼金 | 3ヶ月/0ヶ月 | ||
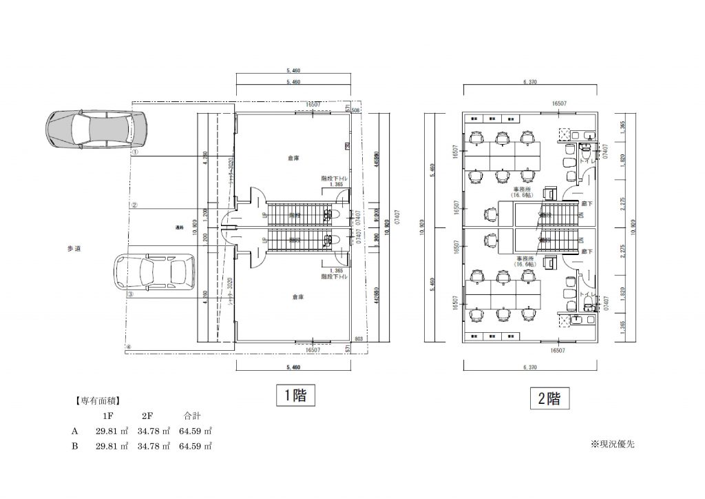
| 物件所在地 | 福岡市東区和白1丁目 | ||
| 現況(賃貸) | 空家 | 引渡し日 | 相談 |
| A号室 64.59m² 家賃242,000円(220,000円 税別) 駐車場2台分無料 新築未入居 | 申込有 |
| B号室 64.59m² 家賃242,000円(220,000円 税別) 駐車場2台分無料 新築未入居 |
| 駐車場・駐輪場 | 駐車場2台分 | 完成時期 | 2025年12月 |
|---|---|---|---|
| 設備 | 温水洗浄便座、エアコン、プロパンガス、給湯、照明器具付き | ||
| 特徴 | 角部屋、事務所使用可、保証会社初回保証料、火災保険 | ||
| その他 | 軽飲食可。物販可。 | ||
- お問い合わせ物件
- FERIX和白【和白通り沿いの新築倉庫事務所】









